中古マンション ザ・ステージオガーデンフロントタワー 1502号室
- エリア
- 東京都足立区西新井栄町1
- 物件種別
- 中古マンション
- 間取り
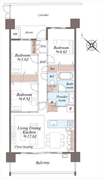
- 3LDK
- 間取り詳細
- 洋室6.0 洋室5.0 洋室4.5 LDK17.0
- 路線
- 東武伊勢崎線(スカイツリーライン)「西新井」駅 徒歩5分
- 価格
- 9,998万円
- 建物面積/専有面積
- 73.02㎡
- 土地面積
- 15350.31㎡
- 築年数/建築年
-
19年 / 2006年12月

このお住いのポイント物件概要
- 現況
-
空室
- 引渡可能時期
- 相談
- 建物構造
-
RC
- 総戸数
-
276戸
- 階建
-
地下1階付地上20階建
- 所在階
-
15階
- 主要採光面
-
南西
- バルコニー
-
11.97㎡
- 管理費
-
15751円
- 修繕積立金
-
16980円
- ペット飼育
-
可
細則有
- 土地権利
-
所有権
- 用途地域
-
近隣商業地域
第一種住居地域
- 施工会社名
-
(株)淺沼組
- 分譲会社名
-
野村不動産(株) / 三菱地所(株)
- 管理会社名
-
野村不動産パートナーズ(株)
- 管理形態区分
-
全部委託
- 管理員の勤務形態
-
日勤
- リフォーム・
リノベーション - 【2026年5月上旬リフォーム完了予定】
■キッチン交換■浴室交換 ■洗面化粧台
■トイレ交換
■床張替■玄関タイル交換
■建具交換■照明交換■配管交換
■壁紙張替
■ハウスクリーニング - 設備
- 都市ガス/上水道/下水道/追焚機能/浴室乾燥機/洗面台/トイレ専用/温水洗浄便座/システムキッチン/カウンターキッチン/対面式キッチン/3口コンロ/食器洗浄乾燥機/収納スペース/全居室収納/クローゼット/照明器具/洗濯機置場/室内洗濯機置場/給湯/エレベーター/宅配BOX/24時間換気システム/インターネット対応/オートロック/モニター付インターホン/日当たり良好/眺望良好/通風良好/免震構造
- 生活環境
- 閑静な住宅街
- 駐車場
- 空き:有
10,000~18,000円/月 - 自転車置き場
- 空き:有
100~500円/月 - バイク置き場
- 空き:有
1,000~2,000円/月 - 取引態様
- 媒介(仲介)
- 担当者
- 山﨑梢文
※地図上に表示される物件の位置は付近住所に所在することを表すものであり、実際の物件所在地とは異なる場合がございます。
※地図の更新タイミングの関係で、物件情報が実際のものとは異なる場合や最新情報に更新されていない場合がございます。
周辺環境
- 西新井アリオ 約210m
- パサージオ西新井 約160m
- 生鮮市場 まるいち 約100m


























